NPO法人黄金町エリアマネジメントセンターでは、『黄金町バザール2016』における「黄金町まちプロジェクト」の一つとして、「まちにくわえる」と題し、複数年にわたって当該地区に様々な機能を配置するプログラムを展開します。2016年は、元違法風俗店舗をアーティストのアトリエスペースへリノベーションする作品提案を募集します。提案内容は『黄金町バザール2016』の建築作品として、施工を経て展示し、会期終了後には、その空間を利用するアーティスト・クリエーターを公募し活用していきます。
今回、まちに加える機能は以下の通りです。
A.アーティスト・クリエーターのスタジオ [ 採択件数:3組 ]

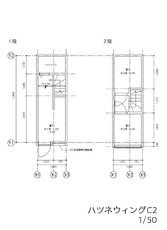
当該地区で活動するアーティストやクリエーターが制作を行うことができる空間のデザインを募集します。隣り合う3軒(1-A~A-3)の中から、1軒分のプランを応募してください。(※A1~A3は同一平面、同条件です。)
黄金町バザール2016開催中は空間作品として展示・公開し、その後、レジデンス希望者を公募し活用していきます。
B.イベントイクイップメント [ 採択件数:1組 ]
高架下スタジオSite-Dとかいだん広場を中心に毎月第2日曜日にのきさきアートフェア+はつこひ市場というイベントを開催しています。そこで、アーティストや地域商店が作品や商品の展示販売を補助する装置(イクイップメント)の提案を募集します。本装置は、簡易に組み立てが可能なもの、また、移動が可能なものとし、会期中はインフォメーションブースとして利用します。なお、提案に際しては、事前に施工業者と十分相談の上、提案内容において強度が十分確保されていることや予算内に収まることなど見通しを付けた上でのご提案としてください。

工事費
アーティスト・クリエーターのスタジオは、 7万円/㎡を上限に設定の上、提案内容をご検討ください。本工事費に含まれる内容は、提案を具体化するために必要な内装工事一式の他、サッシ交換及びそれに関連する工事、電気工事、設備工事を見込んでください(エアコンの本体及び設置工事費を含む)。また、業者に発注せずセルフビルドでも可とします。その場合には、審査通過後、別途セルフビルドに係る見積書を提出して頂いた上で、当NPOで業者見積りを取り、その両方の金額を比較して、どちらか低い方の工事費を当該工事費として設定します。※業者選定及び発注は当NPOが行います。
また、イベントイクイップメントは、10基を必要とし、予算は全部で100万円以内としてください。こちらもセルフビルドでも可としますが工事費算出の要領は前述の通りです。
設計料
審査を経て選ばれた提案者には設計料として20万円(税込)をお支払いします。※本設計料に含まれる内容は、見積り図作成・工事費調整及びそれに伴うプラン調整・工事監理に係る費用とします。
2016年7月22日(金) 必着
※郵送のみの受付です。 ※持ち込み不可
国籍・年齢・個人・団体は問いません。ただし提案の内容及び実施に責任が持てること、また、重複応募は不可とします。(ただし、A.アーティスト・クリエーターのスタジオとB.イベントイクイップメントの双方に1案ずつ提案することは可能。 [※2016年6月15日変更] )
必要書類一式を用意の上、期間内に下記宛先までお送りください。
様式1(概要書)と様式2(自由書式・A3サイズ2枚以内で提案意図が分かり、かつ、実現可能性が判断できるよう表現してください。また、提案者が特定できる表現は禁止です。[※2016年6月13日追記])及びポートフォリオ(自由書式)をともに1部提出のこと。提出書類は返却致しません。返却が必要な場合は、返信用封筒に必要費用分の切手を貼って同封してください。
応募書類ダウンロード
様式1→ EXCELデータでダウンロードする / → PDFデータでダウンロードする
様式2→ AIデータでダウンロードする[zip形式] / → PDFデータでダウンロードする
〒231-0066 横浜市中区日ノ出町2-158
黄金町エリアマネジメントセンター「黄金町まちプロジェクト2016」公募係
7月中旬に審査を実施し、速やかにウェブ等で発表します。また、事前に審査結果を提出された方全員にお知らせ致します。審査結果理由については当選者のみ付記します。その他の方にはお答え致しません。
■飯田善彦(飯田善彦建築工房・立命館大学大学院SDP客員教授)
■櫻井淳(櫻井淳計画工房)
■鈴木伸治(横浜市立大学教授)
■曽我部昌史(みかんぐみ・神奈川大学教授)
■西倉潔(西倉建築事務所・名古屋造形大学教授)
■山野真悟(黄金町バザールディレクター・黄金町エリアマネジメントセンター事務局長)
(五十音順・敬称略)
第1回目:6月18日(土)10:30~ 終了しました。
第2回目:6月26日(日)10:30~ 終了しました。
集合場所:高架下スタジオSite-D集会場(横浜市中区黄金町1-2地先)
所要時間:説明・質疑応答45分を経て見学会45分(同じプランのため、3軒中1軒が見学対象です。[※2016年6月15日修正] )※途中退出可能
上記見学会にて質疑時間を設けます。また、そこでやり取りした内容はウェブ等で公開します。その他、メールや電話等での質問は受け付けません。
| 6月~7月中旬 7月中旬 7月下旬~8月中旬 8月中旬~9月 9月~10月 |
提案公募 審査・決定 見積り図面作成・所有者調整・プラン調整 見積り・調整 工事・竣工 |