まちにくわえる
アーティスト・クリエーターによって創り出される空間作品を活用してまちに必要とされる機能を加えていくプログラム「まちにくわえる」。今回は「レジデンススペース」「ライブラリー」「インフォメーション」という3つの機能を設定し、その空間デザインを本年5月29日(金)から7月10日(金)にかけて公募しました。その結果として、5組の最優秀者を決定しました。これらの作品は、黄金町バザール2015の空間作品として展示し、会期終了後は創造的な人材の活動の場として活用していきます。
応募数
| 施設 |
A.インフォメーション |
B.ライブラリー |
C-1.レジデンススペース |
C-2.レジデンススペース |
C-3.レジデンススペース |
合計 |
| 応募数 |
7件 |
25件 |
8件 |
10件 |
11件 |
61件 |
審査員
- ■飯田善彦(飯田善彦建築工房・立命館大学大学院SDP客員教授)
- ■櫻井淳(櫻井淳計画工房)
- ■鈴木伸治(横浜市立大学教授)
- ■曽我部昌史(みかんぐみ・神奈川大学教授)
- ■西倉潔(西倉建築事務所・名古屋造形大学教授)
- ■山野真悟(黄金町バザールディレクター・黄金町エリアマネジメントセンター事務局長)
- (五十音順・敬称略)
A.インフォメーション
【最優秀者】國武美久《あつまってふせぐ》
プロフィールを見る
-
多摩美術大学環境デザイン学科卒業。
TOKYO DESIGNERS WEEK 2012 にて学校作品展グランプリ、作品展グランプリ、プレゼンテーション賞セミグランプリ獲得。
現在、東京芸術大学大学院美術研究科建築専攻トムヘネガン研究室在学中。
〈審査講評〉
外壁の黒板化など、周辺との関係を持たせるような提案が評価できた。また室A・Bのプランニングについても地域防犯拠点として人が集まることをイメージできる提案となっていた。実施の際には、「電柱」の形状が本当に掲示板として適した形なのか十分検討をしてほしい。
【次点】Soi / Studio Eiichiro Owada + Konami Inoue (大和田栄一郎+井上湖奈美)《展開するインフォメーション》
プロフィールを見る
-
- 横浜国立大学大学院Y-GSA在学中にSoiとして設計活動を開始。
主な受賞歴
- 2012 第18回ユニオン造形デザイン賞奨励作品
- 2012 2011年度後期Y-GSA 最優秀作品
- 2012 第二回リノベーションアイデアコンペ 優秀学生賞
- 2014 姫路杉活「まちかぐ」コンペティション 優秀賞
- URL: http://soi-a.com
B.ライブラリー
【最優秀者】KSA / kakita jun + sumitani motoko
《日ノ出町アートブックライブラリー》
プロフィールを見る
-
住谷素子
1980年愛知県生まれ。北海道大学、東京都立大学大学院で建築を学ぶ。国内設計事務所を経て、2006年渡豪。現地設計事務所勤務。2013年帰国後、藤本壮介建築設計事務所を経て、2014年よりKSA共同主宰。
垣田淳
1978年東京都生まれ。北海道大学大学院で建築を学ぶ。現在、竹中工務店東京本店設計部勤務。2012年より北海道大学非常勤講師。2014年よりKSA共同主宰。
→ http://www.kakitasumitani.com
〈審査講評〉
小さなモデュールの「本棚」で組み上げた空間は、書籍が集積する密度感を持ちながらも、収蔵だけではなく、使う人の佇まいが見える構成となっていた事が評価できた。また、既存の床と同じラーチ合板を使用した点も空間の統一性を生み出しており評価できる。
【次点】Atelier Ichiku《黄金町ライブラリー(仮)》
プロフィールを見る
-
大室佑介
1981年東京都生まれ
2005年多摩美術大学環境デザイン学科 卒業
2007年多摩美術大学大学院美術研究科 修了 磯崎新アトリエ勤務
2009年大室佑介アトリエ/atelier Ichiku設立
松原徹弥
1988年カリフォルニア州生まれ
2011年武蔵工業大学工学部建築学科 卒業
2013年多摩美術大学大学院美術研究科 修了
2014年beArk inc.。
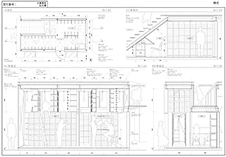
C-1.アーティスト・クリエーターのレジデンススペース
【最優秀者】一級建築士事務所 中村建築《ROOM BATHTUB》
プロフィールを見る
-
中村 堅志
1976 年山口県宇部市生まれ。2001 年大分大学院工学研究科博士前期課程建設工学専攻修了。設計事務所勤務を経て、2012 年一級建築士事務所中村建築設立。2013 年「気仙沼魚町南町湾内地区復興まちづくりコンペ」最終8 案入選。
→ www.nakamura-a.com
〈審査講評〉
床から壁にまで連続する防水層により内部が構成されており、一般的なレジデンススタジオでは得にくい独特な性能を有するものとなっていることが評価できた。防水層が確実な性能を得られるよう、下地の構成を含め十分な配慮の上で施工して欲しい。
【次点】日本大学佐藤慎也研究室《黄金劇場》
プロフィールを見る
-
日本大学理工学部建築学科において、「建築とアート」をテーマに、芸術文化施設の建築計画に関する研究を行う。一方で、建築にとどまらず、アートプロジェクトや劇場外演劇などのプロジェクトにも多数参加。参加プロジェクトに「としまアートステーション構想」(2011-)、「居間 theater HAGISO パフォーマンスカフェ」(2013)など。
→ http://art.arch.cst.nihon-u.ac.jp
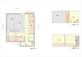
C-2.アーティスト・クリエーターのレジデンススペース
【最優秀者】IVolli architecture / アイボリィアーキテクチュア《まちに応答する長屋》
プロフィールを見る
-
IVolli architecture / アイボリィアーキテクチュア
永田賢一郎と原﨑寛明による建築ユニット。2013年より横浜を拠点に活動開始。建築設計をはじめ、インテリアやプロダクトのデザインからプロジェクトデザイン、インスタレーションなど建築にまつわる様々な活動に取り組んでいる。
永田賢一郎:1983東京都出身 横浜国立大学大学院/建築都市スクールY-GSA修了
原﨑寛明:1984神奈川県出身 横浜国立大学工学部建設学科卒業
→ http://ivolli.jp/
〈審査講評〉
床を抜き、大型の作品制作も可能な空間となっており、アーティストが求める空間に柔軟に対応できる構成となっていたことが評価できた。実施に際してはファサードもしくはサッシについても積極的なデザインを検討してほしい。
【次点】八木橋 智也
プロフィールを見る
-
1980年神奈川県生まれ。/2005年東京デザイナー学院建築デザイン科卒業/2005年環境デザイン・アトリエ一級建築士事務所勤務。/2013年株式会社梓設計勤務(派遣社員)
E-mail:sp6a4de9@beetle.ocn.ne.jp
C-3.アーティスト・クリエーターのレジデンススペース
【最優秀者】川嶋貫介/かわしまかんすけ事務所《ニワのあるアトリエ》
プロフィールを見る
-
川嶋貫介/かわしまかんすけ事務所
1974年生まれ。早稲田大学建築学科卒業。早稲田大学大学院修士課程修了。妹島和世建築設計事務所/SANAA勤務を経て、かわしまかんすけ事務所設立。現在、かわしまかんすけ事務所代表、京都精華大学特任准教授、日本工業大学非常勤講師、早稲田大学理工学総研嘱託研究員、ゴールデンスタジオ共同主宰。
〈審査講評〉
壁面の既存作品を活かしつつ、新しい空間を挿入するという空間構成が評価できた。既存の壁面作品のクオリティも高いため、実施の際にはそれを活かした提案としてほしい。
【次点】岡﨑 絢《のっぽなアトリエ、ちいさな屋根裏》
プロフィールを見る
-
1990 アメリカ生まれ
1995- 東京都在住
2015 東京理科大学大学院建築学専攻 修了
賞歴
2012 建築学会コンペ 関東支部入選
2013 JACS住宅設計コンペ 次点
2014 ハーフェレ学生デザインコンペ 最優秀賞
ディレクター推薦
ヴェレナ・イセル/Verena Issel
プロフィールを見る
-
1982年ドイツ・ミュンヘン生まれ。ノルウェーの高校を卒業後、2011年ハンブルク造形美術大学ファインアート学科を卒業。アーティストとしてヨーロッパ、韓国、パプアニューギニアなどで活動中。あるテーマに基づいて個別の絵画や彫刻を配置し、構成したインスタレーション作品を展開している。その多くは文学や哲学から発想を得ている。

Verena Issel《TROPHY DELIGHT》2014年

Verena Issel《NUGAE》2013年
Mural Project
ヤマグチオサム 《壁画》
ヤマグチオサム 《壁画》
ワークショップでこどもたちが選んだ「夏色」をベースに、指揮の移り変わりを色彩で表現した、グリッドデザインによる壁画。壁画プロジェクトは、「初黄・日ノ出町地域における落書き防止事業」によって落書きを消去した建物に作品を設置するものです。